Is it a home or a railway station?
Click on each image for a closer look!
.
Barry Silverthorn has been a part of our TRHA adventure for many years now and is the donor of TRHA’s CN F7 Diesel Cab which he saved many years ago from the wreckers. But that is not the topic of this news post.
.
Many people have taken old railroad stations and converted them to all sorts of purposes and even into homes. Usually they were moved away from the railroad they served. Some people take a different approach and build new homes for themselves designed to look like railroad stations. Many of us dream of this possibility and some manage to build small buildings like sheds to capture that railroad look but few actually tackle the much more challenging project of build such a home.
.
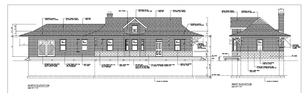
Barry is one of these railway enthusiasts. He has acquired an appropriate property beside a railroad track in Belleville, Ontario and has designed a new home to be built there as shown in the diagram above. The pictures below are of the lot where the home will be built, ideally located for a station!
.
Posting by Russ Milland; Drawing by Barry Silverthorn.
.


