Acquisition of a CNR Wood Caboose – Part 4
With the CN caboose now safely housed in Stall 15 of the Roundhouse and undergoing exterior restoration, what do we know about the history of this caboose?
CNR Caboose #79144
The caboose was the CN’s Caboose #79144 and was first built by the Eastern Car Company in 1920 as a wooden boxcar #424669. With the wooden boxcars becoming obsolete, the CN rebuilt many of them into cabooses. In December of 1957, the CN rebuilt this boxcar into CN Caboose #79144. It still sits on its original elliptical leaf spring type trucks. Its weight is 17 tons or 34,000 lbs. The overall dimensions are 9’-5” wide x 36’-6” long x 15’-0” tall with wheels on. d wood-sheathed, wood-roofed box cars for the Grand Trunk Railway in 1913.
Eastern Car Company of Trenton, Nova Scotia
The Eastern Car Company Limited was organized in 1912 as a division of the Nova Scotia Steel & Coal Company Limited, which already owned foundry and forging facilities in and near New Glasgow, N.S., of which Trenton is a suburb. The first car order processed through this plant was one for 2,000 steel-framed wood-sheathed, wood-roofed box cars for the Grand Trunk Railway in 1913.
The Eastern Car Co. plant has been in continuous operation since 1913, and has produced over 63,500 freight cars since that time. In addition, approximately 9,300 cars were produced for use in Nova Scotia coal and ore mining. Some images of the facility can be found below.
For a more comprehensive history, click here.
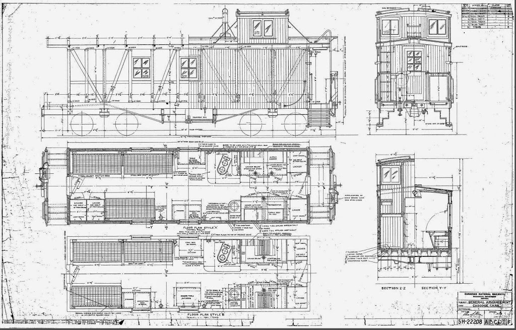
A plan of this style of CN caboose can be found above.
Click here to read Part 5 of this series.
Click on each image for a closer look!





